
時間:2020-10-05 來源:www.cqshuzhan.com瀏覽量:4989
七、我們從地彈門的基礎門五金件開始分析
1、地彈門幾個關鍵五金的組成如圖所示:
2、五金件的選用
按門重量和門尺寸選擇與之配套的最大承重內和門寬范圍內的五金配件,嚴禁不配套使用。施工前應嚴格檢查包含門重量、門尺寸及與之配套使用的五金件的型號、最大承重、門寬范圍、適用溫度、定位形式、最大開啟角度、壽命等信息。
下面是地彈簧部分
下面是門上軸五金件
3、嚴格控制地彈門單扇寬度和單扇面積,寬度不宜過寬,面積不宜過大;控制單扇門重量。
八、門上軸破壞
從眾多門脫落視頻中發現:門上軸是脫落機率最大的位置
門扇與門框距離過大-門軸脫出
(門扇加工尺寸不足、地基沉降、門框剛度不足等)
如果搭接量過小,門扇反復開啟后五金件有一定磨損后極易失效,
應具有防止圓不銹鋼棒脫落的有效措施
門軸斷裂
門扇剛度不足變形后脫出門軸
九、材料與施工質量管控
1、材料管控
門扇、門框 :鋼結構/鋁合金型材型號、規格符合設計要求
地彈門五金件:品牌庫品牌、產品質量證明、門承重荷載符合設計要求
2、施工質量管控
1)門扇、門框加工
門扇距上下門框門縫不大于10mm
2)地彈門五金件安裝
門扇上方固定件安裝方向符合設計要求
地彈簧、門軸五金件固定螺絲釘數量及錨固滿足要求地彈簧固定牢靠,回填地面夯實調位,無沉降。
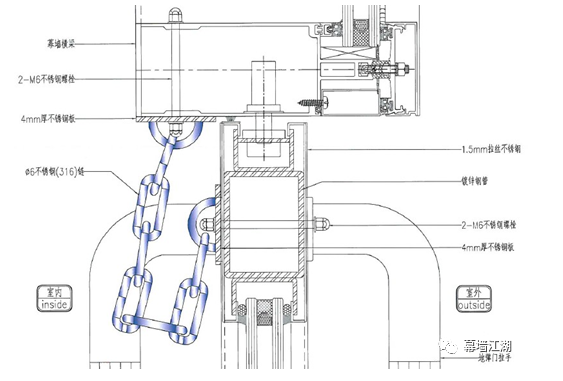
十、加固措施
在門扇與門框之間增加一根不銹鋼防墜鏈(存在雙向開啟門與單向門鏈碰撞風險)
上述的防掉落的加固措施簡單粗暴,不高大上,但可以起到一定的安全作用,可以降低門扇倒下后危險事故的機率,在沒有其它可靠措施方案的條件下,可以考慮參考使用。近幾年已有部分工程已經在使用,如下為實例照片:
十一、使用過程中的日常維護
(1) 定期檢查地彈門及五金件的使用情況。
(2) 如遇門扇開啟、關閉出現異常,應立即禁止使用,現場設置警示圍欄,并組織相關人員進行維修。
十二
很多血腥的照片和視頻,出于對逝者的尊重,不再上傳。
屢屢出現的事故已經不再是個例,建筑幕墻行業亟需自上而下的整頓、規范、管理,這也許是我們必須要經歷的一個過程。
公司新聞MORE+
行業資訊MORE+